Öffentliche Grünfläche Eschmar West
Beschreibung
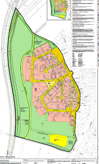
Planungsgebiet: ca. 13.000 qm
Planungs- und Bauzeit: geplant 2023-2024
Projektkosten: ca. 420.000 €
In 2018 wurde der Bau für das Neubaugebiet Eschmar West als Erweiterung der Gartenstadt begonnen. Die Bauphase für das Wohngebiet ist nun abgeschlossen und die Bewohner*innen sind bereits in ihre Häuser und Wohnungen gezogen. Im zugrundeliegenden Bebauungsplan E65_Bl3 wird neben der Wohnbebauung eine öffentliche Grünfläche mit der Zweckbestimmung „Parkanlage“ ausgewiesen.
Diese wird gemeinsam mit einem Landschaftsarchitekten in einer Planungsphase in 2023 gestaltet, sodass die entsprechende Umsetzung überwiegend im kommenden Jahr durchgeführt wird. Einzelne Flächen können voraussichtlich erst fertiggestellt werden, wenn der ausstehende Straßenausbau abgeschlossen ist.
In der Planung werden alle relevanten Festsetzungen aus dem Bebauungsplan, welche die Grünfläche betreffen, entsprechend einbezogen. So werden ca. ein Fünftel der Gesamtfläche mit Bäumen und Sträuchern bepflanzt. Zudem werden Fußwegeverbindungen aus dem Wohngebiet in die Grünfläche sowie ein Fußweg zur Querung der südlichen Fläche angedacht.
Ziel der Planung und Herrichtung der Grünfläche ist es, den Anwohner*innen und Bürger*innen Troisdorfs einen Ort zu gestalten, an dem sie Erholung finden und gleichzeitig die Natur genießen können.


