Feuerwehrgerätehaus Friedrich-Wilhelms-Hütte - Neubau
Beschreibung
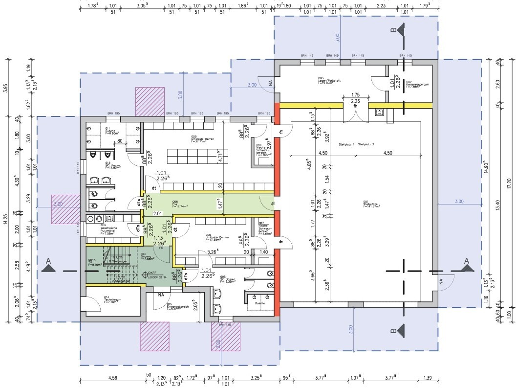
Nutzflächen: ca. 580 qm
Bauzeit: 2022 - 2023
Projektkosten: ca. 2.300.000 Euro brutto
Dieser Neubau eines Feuerwehrgerätehauses für die Löschgruppe der freiwilligen Feuerwehr Friedrich-Wilhelms-Hütte ist das vierte dieser Bauart im Troisdorfer Stadtgebiet, neben einem in Spich, einem in Müllekoven und einem in Altenrath.
Der Flachdachbau vereint eine eingeschossige Fahrzeughalle für zwei Löschzüge und einen zweigeschossigen Teil mit den Räumlichkeiten für die Einsatzkräfte.
Durch den Einsatz von hochdämmenden Außenwänden, Beheizung per Wärmepumpe, Einsatz einer Photovoltaikanlage, Begrünung der Dachflächen und Einbau einer Regenwasserversickerung werden aktuellen Anforderungen an Energieeinsparung und Umweltaspekten Rechnung getragen.
Adresse
Lahnstraße, 53840 TroisdorfBeschreibung
Ausführung: Herr V. Hill


