Feuerwehrgerätehaus Bergheim - Neubau
Beschreibung
Nutzflächen: ca. 352 qm
Bauzeit: 2018 - 2019
Projektkosten: 980.000,- Euro brutto
Da das bestehende Feuerwehrgerätehaus in Bergheim nicht mehr den aktuellen Anforderungen an die Einsatzfähigkeit der örtlichen FW-Löschgruppe genügt, wurde die Errichtung eines neuen Gebäude notwendig. Es entsteht im Zufahrtsbereich zum Neubaugebiet an der Großen Heerstraße.
Aufgrund der Auslagerung des Feuerwehrgerätehauses aus dem dicht bebauten Ortskern in den Bereich der Ortszufahrten zu Bergheim und Müllekoven können schnelle Einsatzzeiten in beide Ortsteile gewährleistet werden.
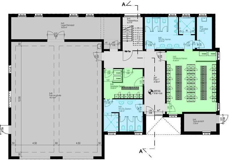
Das Flachdachgebäude in Massivbauweise ist zweigeschossig, nicht unterkellert, mit Putzfassade versehen und erhält seine Wärmeversorgung durch Geothermie. Es ist mit ausreichend großen Umkleide-, Dusch- und Sanitär- sowie Lagerräumen im EG, sowie Besprechungs- und Büroräumen im OG ausgestattet. Zudem findet sich eine Fahrzeughalle zur Aufnahme von zwei Löschfahrzeugen und auf dem Grundstück genügend Stellplätze für die Einsatzkräfte sowie Übungsflächen.
Beschreibung
Ausführung: Herr M. Piepenstock



